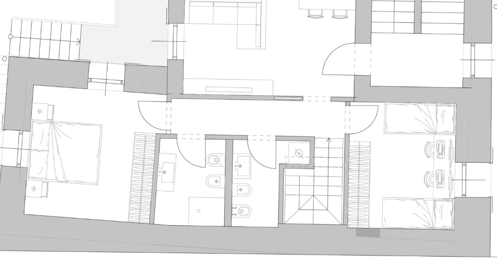
Residenza Le Tofane
Questo progetto punta ad implementare l’offerta di un’area a forte vocazione residenziale della città di Pergine Valsugana, strategicamente ben localizzata e poco distante dal centro storico.
SCOPRI DI PIÙ
Questo progetto punta ad implementare l’offerta di un’area a forte vocazione residenziale della città di Pergine Valsugana, strategicamente ben localizzata e poco distante dal centro storico.
SCOPRI DI PIÙ